Oferty
(1)Pozostałe oferty od najtańszej
Opis i specyfikacja
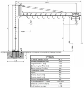
DANE TECHNICZNE:
1.Udźwig Q= 0,5
2. Zakres pracy wciągnika Rmax = 6,0
3.Typ wciągnika - wciągnik elektryczny łańcuchowy
4. Obrót Ręczny 270 st.
5.Wysokość podnoszenia Hp = 3,0
6.Wysokość całkowita Hc= 4,7
7. Prędkość podnoszenia Vp= 4/1 .
8. Prędkość jazdy wciągnika Vjw= 5/20 .
9. Grupa natężenia pracy GNP/FEM = A5 (2m) - wciągnika; A3 (1Bm) - żurawia.
10. Napięcie zasilania Uz= 400 , 50 .
11. Napięcie sterowania Us= 24 , 50 .
12. Moc całkowita Ptot= ~1,0 .
13. Sterowanie z kasety sterowniczej o obniżonym napięciu, podwieszonej do wciagnika.
14. Posadowienie fundament (kotwy wraz z instrukcją fundamentowania
dostarcza firma).
15. System posadowienia składa się z kotew, nakrętek, podkładek oraz nakrętek zabepieczających.
16. Doprowadzenie zasilania żurawia docelowego do miejsca montażu należy wykonać przewodem
o przekroju 4G4 wg. instrukcji fundamentowania (ułożyć i zabezpieczyć rurę przepustową wraz z wprowadzonym
przewodem zasilającym)
17. Zasilanie wciągnika wykonane jest jako system wózków kablowych z kablem płaskim i wózkami na czynie "C".
18. Środowisko pracy hala
19. Dokumentacja DTR, deklaracja zgodności CE
20.Warunki gwarancji 12 miesięcy.
Żuraw słupowy z wciągnikiem elektrycznym łańcuchowym.
UWAGA!!!
Oferta nie obejmuje transportu, montażu oraz uczestnictwa firmy w odbiorze UDT.
Firma, której głównym obszarem działalności jest produkcja i usługi, została stworzona z myślą o zaspokojeniu potrzeb klientów w zakresie transportu bliskiego. Pierwsze produkty (wciągniki i wciągarki) były dedykowane dla wąskiej grupy klientów, takich jak kopalnie i stocznie. Doświadczenie zdobyte przy tak wymagających klientach w zakresie produkcji i wytwarzania urządzeń spowodowało, iż produkcja Naszej firmy rozszerzona została o dodatkowy asortyment m.in. żurawie, suwnice, wciągniki, wciągarki, konstrukcje nośno przestawne, zawiesia.
Kategoria TRAZBOR zawiera rodzinę urządzeń dźwignicowych o różnych parametrach. Wyszukaj inne urządzenia dźwignicowe wpisując na górze w wyszukiwarce TRAZBOR.
Ze względu na duże gabaryty koszty dostawy są obliczane w zależności od miejsca dostawy oraz zamówionej ilość.
"Większość towarów wysyłamy w ciągu 24H, po sprawdzeniu stanu magazynowego!"
Po zamówieniu (w godzinach pracy) magazynierzy sprawdzają, czy zamówiony towar jest w magazynie, odpowiadają e-mailem lub telefonicznie.


