Oferty
(1)Pozostałe oferty od najtańszej
Opis i specyfikacja
DANE TECHNICZNE:
Udźwig maksymalny 275 - 800 kG
Wysięg maksymalny 1,2 - 1,8 m
Wysokość maksymalna podnoszenia 2,0 - 2,35 m
Kąt obrotu 360 stopni
Wysokość całkowita 2,4 - 2,7 m
Średnica liny 7 mm
Długość liny 10 m
Maksymalna długość liny 20 m
Głębokość opuszczania 5 m poniżej poziomu posadowienia dla liny o długości 10 m m
Zakończenie liny hak lub szekla
Masa żurawia bez podstawy 57- 67 kg
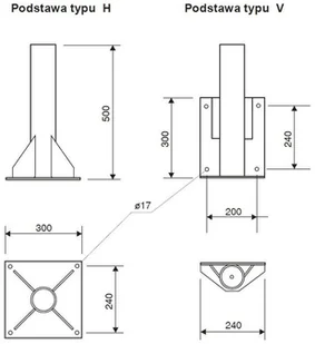
Masa podstawy typu H 16 kg
Masa podstawy typu V 13 kg
Wymiary gabarytowe 2,4 x 1,3 x 0,3 (do 2,7 x 1,9 x 0,3) m
Śruby mocujące podstawy 4 śruby M16 w klasie wytrzymałości minimum 5.6
Wykonanie materiałowe stal ocynkowania ogniowo (OC) lub stal kwasoodporna (KO)
Wykonany ze stali ocynkowanej, maksymalny udźwig 800kG, maksymalny wysięg 1,2m, udźwig na wysięgu 1,2m - 400kG, wysokość podnoszenia 2,0m, linka nierdzewna, długość linki - 10m (dłuższa na życzenie), zakończona kauszą i szeklą
Żurawie przeznaczone do obsługi urządzeń w zlewniach, przepompowniach i oczyszczalniach ścieków. Eliminują konieczność ręcznego przemieszczania ciężkich elementów podczas prac montażowych i obsługowych. Budowa żurawi umożliwia ich łatwy demontaż i przenoszenie, zwłaszcza w wersji standard, o bardzo małej wadze i gabarytach.
Funkcje:
- pionowe podnoszenie i opuszczanie oraz poziome przemieszczanie (obrót kolumny żurawia wokół osi pionowej) ładunków, których ciężar nie przekracza 500-800 kG,
- mogą być stosowane jako żurawie przenośne.
Promocja! "Dostawa gratis na terenie całego kraju"
Czyli dostarczamy bezpłatnie ten towar w dowolne miejsce w Polsce.
"Większość towarów wysyłamy w ciągu 24H, po sprawdzeniu stanu magazynowego!"
Po zamówieniu (w godzinach pracy) magazynierzy sprawdzają, czy zamówiony towar jest w magazynie, odpowiadają e-mailem lub telefonicznie.


